歡迎進入快速門官網!
關鍵詞:快速門、快速門廠家、午夜免费剧场、午夜福利片、成人午夜免费APP門業
產品中心Product
成人午夜免费APP門業(蘇州)有限公司
聯係人:朱經理
手機:17798596815
郵箱:zzy@seppes.com.cn
地址:江蘇省蘇州市吳中區走馬塘路59號4幢
您現在的位置:首頁-產品中心-鋁合金電動卷簾門
無機特級防火卷簾門
適用於不設自動噴淋係統的場合,節能,節省投資 SERANG成人午夜免费APP無機特級防火卷簾門,具有重量輕、減輕對建築結構的負載;隔熱性能好,價格低等優點。具有廣闊的發展前景。 技術參數: 1、背火麵平均溫升≤140℃,單點最高溫升≤180℃,耐火極限:≥3.0h; 2、啟閉速度:2-9m/min; 3、漏煙量不大於0.2m3/m2min;
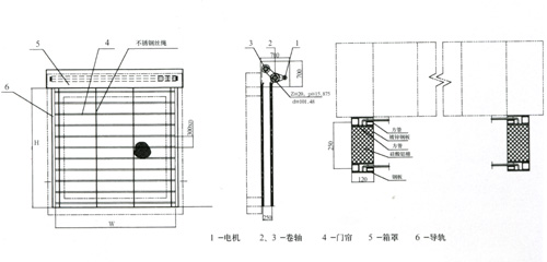
無機布防火卷簾門示意圖
無機特級防火卷簾門實拍圖