詳細介紹
無機特級防火卷簾門
|
適用於不設自動噴淋係統的場合,節能,節省投資 |
|
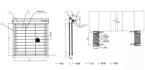
無機布防火卷簾門示意圖
無機特級防火卷簾門實拍圖 |

產品中心Product
成人午夜免费APP門業(蘇州)有限公司
聯係人:朱經理
手機:17798596815
郵箱:zzy@seppes.com.cn
地址:江蘇省蘇州市吳中區走馬塘路59號4幢
廣泛使用於不設自動噴淋係統的場合,節能,節省投資。
無機特級防火卷簾門
|
適用於不設自動噴淋係統的場合,節能,節省投資 |
|
無機布防火卷簾門示意圖
無機特級防火卷簾門實拍圖 |
